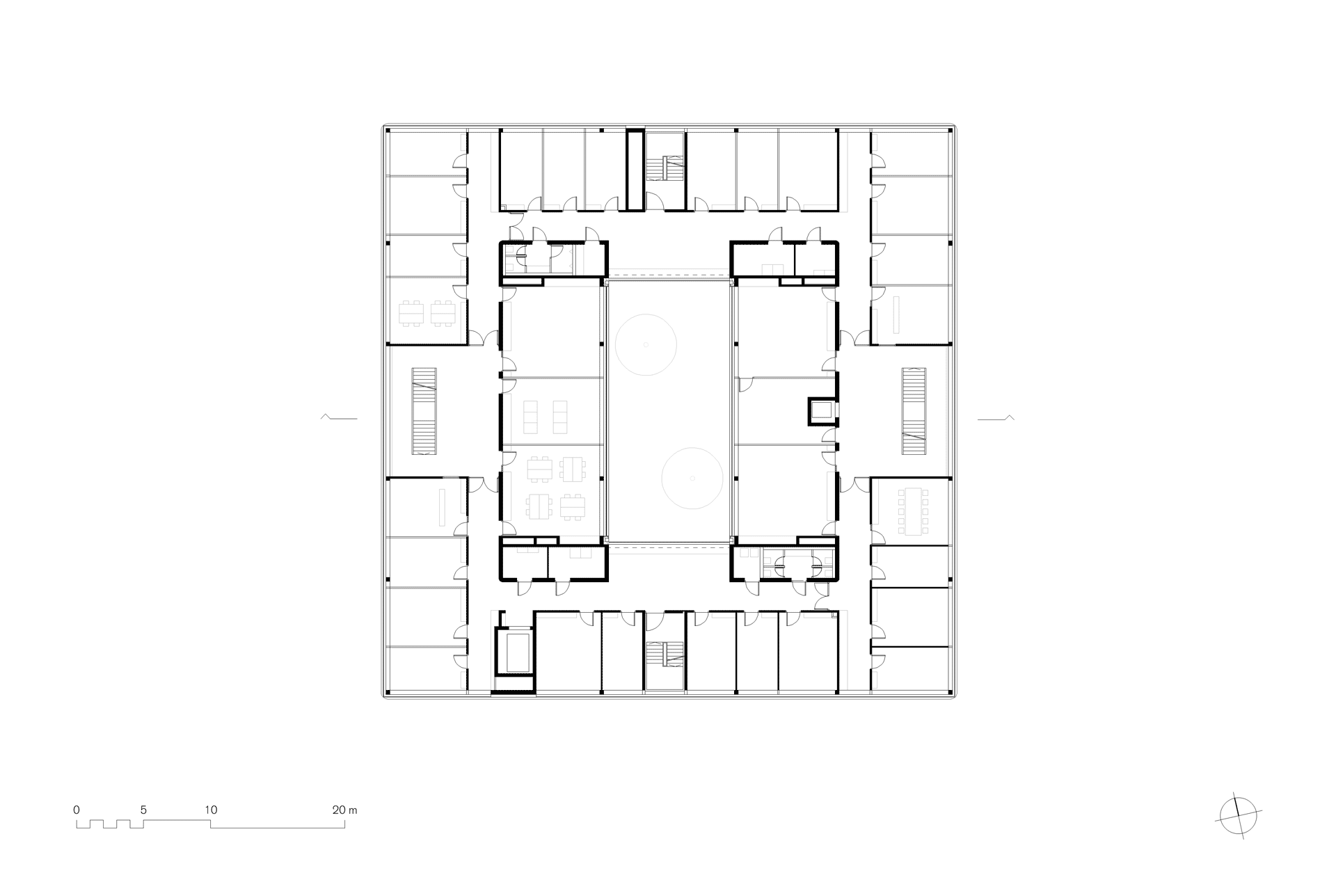
Im Zuge des Ausbaus der Brandenburgischen Technischen Universität (BTU) in Cottbus-Senftenberg sollten die Fakultät für Informatik und das Rechenzentrum in einem gemeinsamen Neubau untergebracht werden. Das dafür vorgesehene Grundstück liegt unmittelbar an der zentralen Fußwegeachse, die dem Campus Struktur und Orientierung gibt. Im viergeschossigen Gebäude wurden die Funktionen entsprechend der Besucherfrequenz angeordnet. Im Erdgeschoss finden sich Foyers und Seminarräume, im ersten und zweiten Obergeschoss sind die Institute der Fakultät für Informatik untergebracht. Den oberen Abschluss bildet das Rechenzentrum, das aus Sicherheitsgründen nur einem sehr eingeschränkten Personenkreis vorbehalten ist. Der annähernd symmetrische Grundriss des Gebäudes ist so organisiert, dass Flursituationen vermieden werden und reichlich Platz für Kommunikation bleibt.
Der quadratische Neubau ist von einer horizontal gebänderten Fassade umhüllt, die vom Bild einer Kupferspule inspiriert wurde. Die handwerklich gefertigten Kupferbänder wurden in weitem Radius auch um die Hausecken geführt. Die horizontal verlaufenden Fensterbänder folgen diesem Prinzip. Feiner, brettergeschalter Sichtbeton, weiss lackierte Schreinerarbeiten und ein heller Werksteinbelag prägen den sorgfältig detaillierten Innenausbau, der von einzelnen Kupferelementen akzentuiert wird. Der Innenhof wird von einer Arbeit der Berliner Künstlerin Pauline Kraneis bereichert: "It’s like talking to ghosts" thematisiert den Dialog mit einer künstlichen Intelligenz.
VOF-Verfahren 2009 / 1. Rang
Fertigstellung 2013
Bauherr BTU Cottbus
BGF 7.831 m²
BRI 30.597 m³
Konrad-Wachsmann-Allee 5
03046 Cottbus
Auszeichnung
Deutscher Rechenzentrumspreis 2014, 3. Preis "Energie- und Ressourceneffiziente Rechenzentren"
Kupfer voroxidiert
Stahl weiß lackiert
Weißbeton Bretterschalung
Eiche weiß lasiert
















