Ein gläsern schimmernder Kubus steht als Solitär am Eingang zum Stadtzentrum und bildet zusammen mit dem gegenüberliegenden Hotel das Tor zur Langen Straße. Im gleichen Maße wie sich das Gebäude durch seine Platzierung im Stadtgrundriss, durch die Aufnahme von Fluchtlinien und die maßvolle Höhenentwicklung in den Stadtkörper integriert, zeigt es sich durch die Materialität der Fassade, die skulpturale Behandlung und die nicht ablesbare Geschossigkeit als herausgehobener Sonderbau.
Ein transluzentes Kleid aus Glasbausteinen verhüllt das Gebäude und entmaterialisiert es tagsüber durch die Reflexion des Lichts an der Fassadenoberfläche. Nachts wendet sich die aus Erschließung und Foyers entwickelte innere Raumskulptur als magisches Leuchten in den Stadtraum und lädt die Rostocker ins neue Volkstheater ein. Die innere Raumskulptur durchzieht das Haus als ringförmig geschlossene Folge von Foyers und deren zenital belichteten großzügigen Verbindungstreppen. Zusammen mit dem Restaurant belegen die Foyers jeweils eine Außenseite des Gebäudes und betonen so in Raum und Fassade die Allseitigkeit des Hauses.
Außenperspektive
Innenraumperspektive
Lageplan
Grundriss Erdgeschoss
Grundriss 1. Obergeschoss
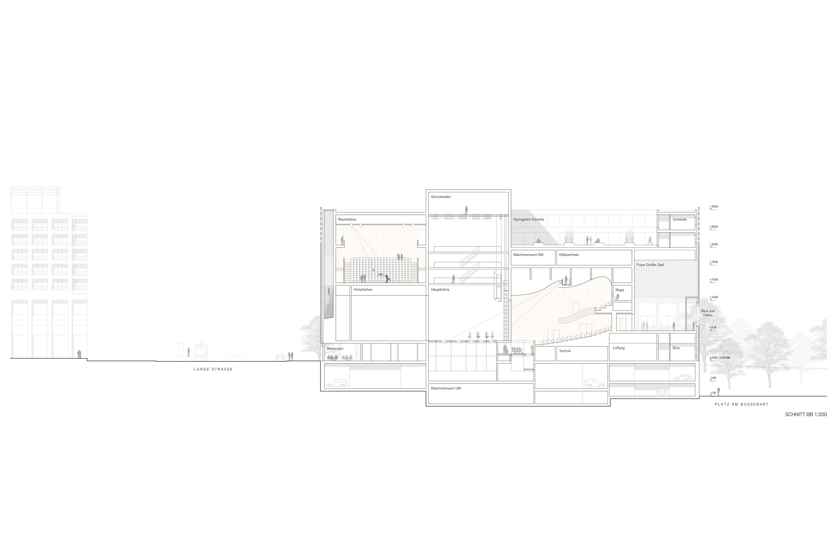
Schnitt





