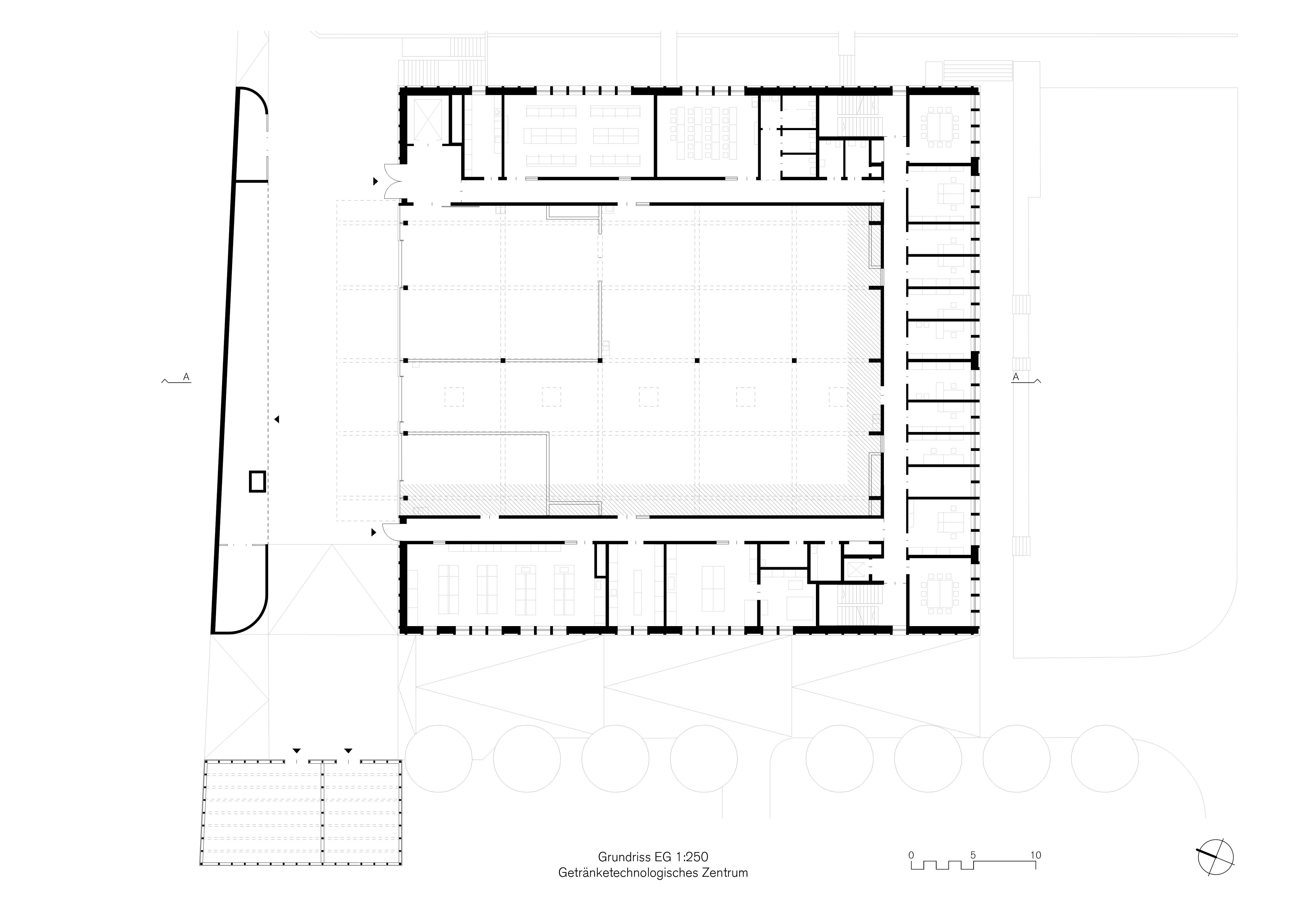
Das Getränketechnologische Zentrum ist der wichtigste Baustein für die praktische Ausbildung künftiger Getränketechnologen an der Hochschule in Geisenheim. Das janusköpfige Gebäude nutzt die vorhandene, deutlich abfallende Topographie. Während das tiefer gelegene, nach Süden hin zurückspringende Sockelgeschoss eine einladende Geste zum künftigen Campusplatz formuliert, erfolgt auf der höher gelegenen Nordseite die Anlieferung der mittig angeordneten Produktionshalle. Um die zentrale Halle legen sich zu drei Seiten mantelförmig umlaufend Labore, Werkstätten und die Verwaltung. Im zentralen Technikum wird der gesamte hochautomatisierte Produktionsprozess der Getränke vom frisch angelieferten Obst, über die Gewinnung von Säften, das Brennen von Schnaps bis hin zur Abfüllung der Getränke in Flaschen und Dosen in der Praxis vermittelt. Das hölzerne Tragwerk ist außen mit Polycarbonatplatten verkleidet und wird so zur Laterne, durch die gefiltertes Tageslicht in die Halle einfallen kann. Im Sockelgeschoss ist eine Schausektkellerei untergebracht, in die Einblicke vom vorgelagerten Verköstigungsbereich aus möglich sind. Ein Sensoriklabor, eine Kaffeerösterei sowie mehrere Werkstätten komplettieren das Raumprogramm dieses in Deutschland einzigartigen Lehrgebäudes. Die Werkstoffe Holz und Beton ergänzen sich hinsichtlich ihrer Stärken und Schwächen in Bezug auf Tragfähigkeit, Robustheit und Nachhaltigkeit und verleihen dem Gebäude eine zeitgenössische und identitätsstiftende Rustikalität.
Wettbewerb 2017 / 1. Preis
Fertigstellung 2025
Bauherr Land Hessen
BGF 4.824 m²
BRI 24.858 m³
Von-Lade-Straße 1
65366 Geisenheim
Polycarbonat
Bretterschalung Lärche, vorvergraut
Dreischichtplatte Lärche
Betonfertigteil gesäuert / sandgestrahlt

















