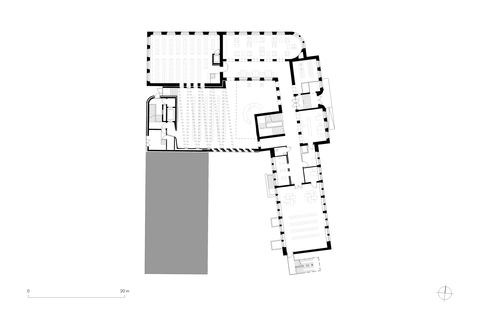
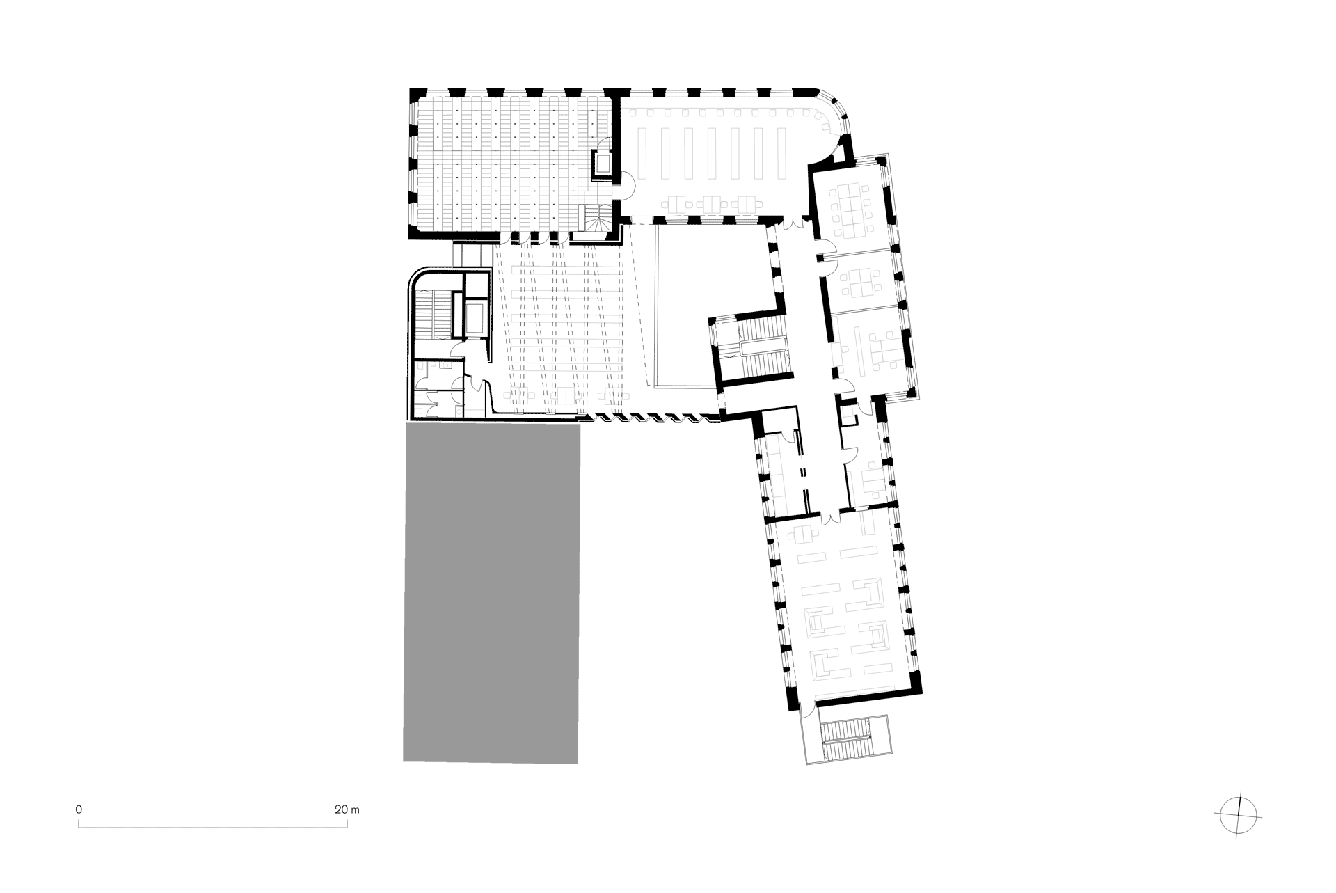
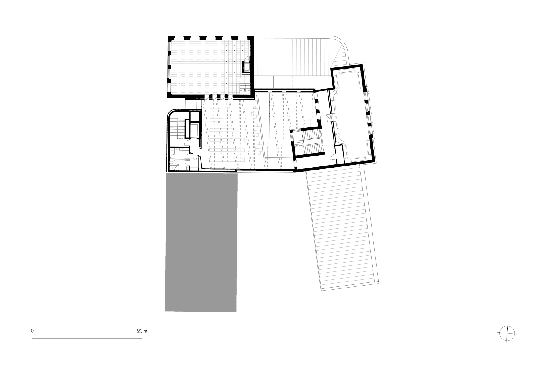
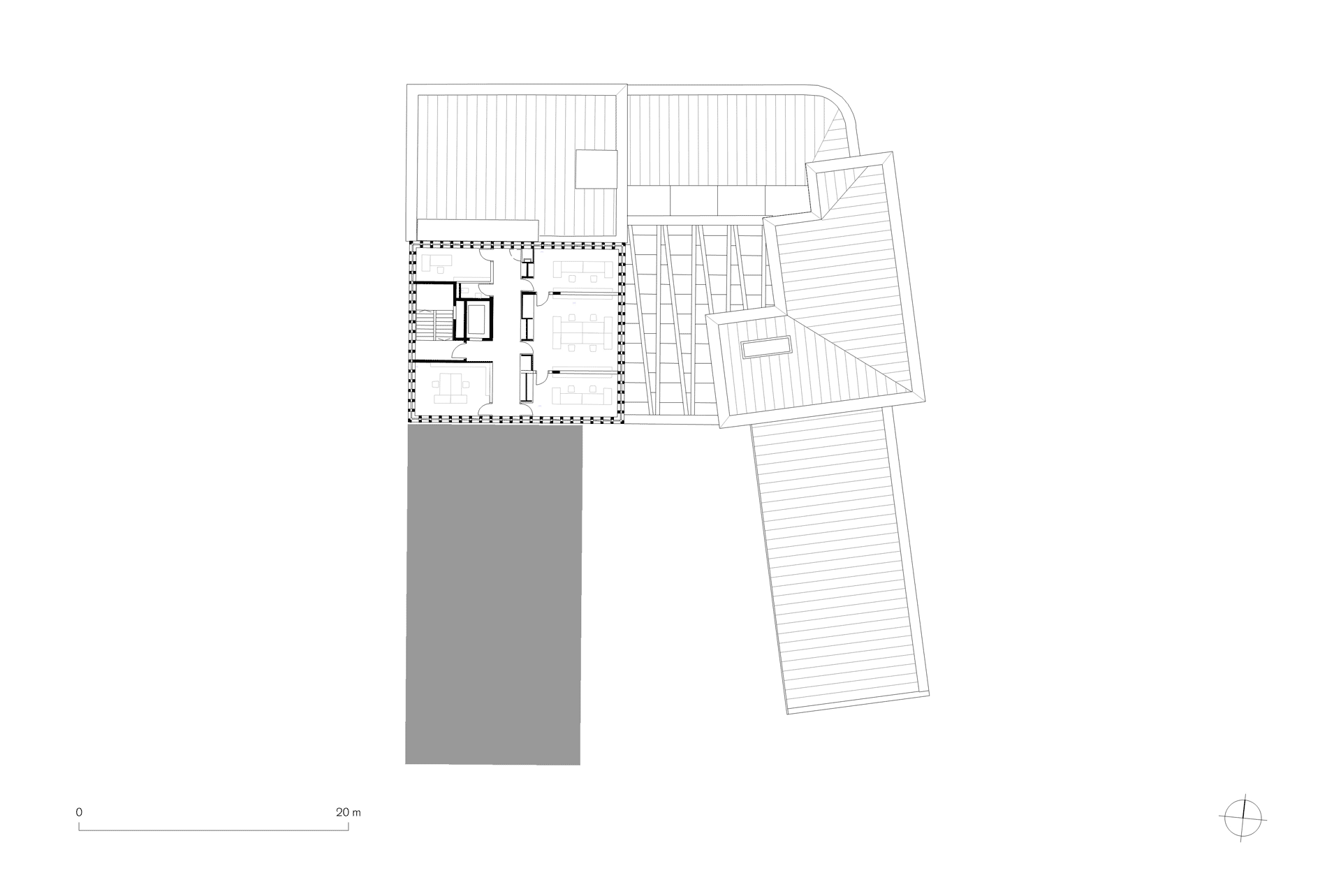
Die Oberösterreichische Landesbibliothek wurde an ihrem traditionellen Standort in der Linzer Innenstadt erweitert und in eine Freihandbibliothek umgewandelt. Hierzu wurde der denkmalgeschützte Altbau aus den 1930er Jahren saniert und an der Rückseite als Passstück ein sechsgeschossiger, mit Naturstein bekleideter Neubau errichtet. Der frühere Hof wurde zum großzügigen, lichtdurchfluteten Herz der neuen Bibliothek. Ein Großteil der Magazinbestände findet in den Untergeschossen des Neubaus Platz, die Verwaltung erhielt Räume in dessen Turmlaterne. In einem zweiten Bauabschnitt sind eine Vergrößerung des Freihandbereichs und die Einrichtung einer Leseterrasse geplant.
Wettbewerb 2006 / 1. Preis
Fertigstellung 2010
Bauherr Land Oberösterreich
BGF 5.770 m²
BRI 21.903 m³
Schillerplatz 2
4020 Linz, Österreich
Auszeichnung
best architects 11 Award
Eichenholz
Terrazzo
Putz
Mooser Kernstein

















