Stadthalle

Lohr am Main, 2016

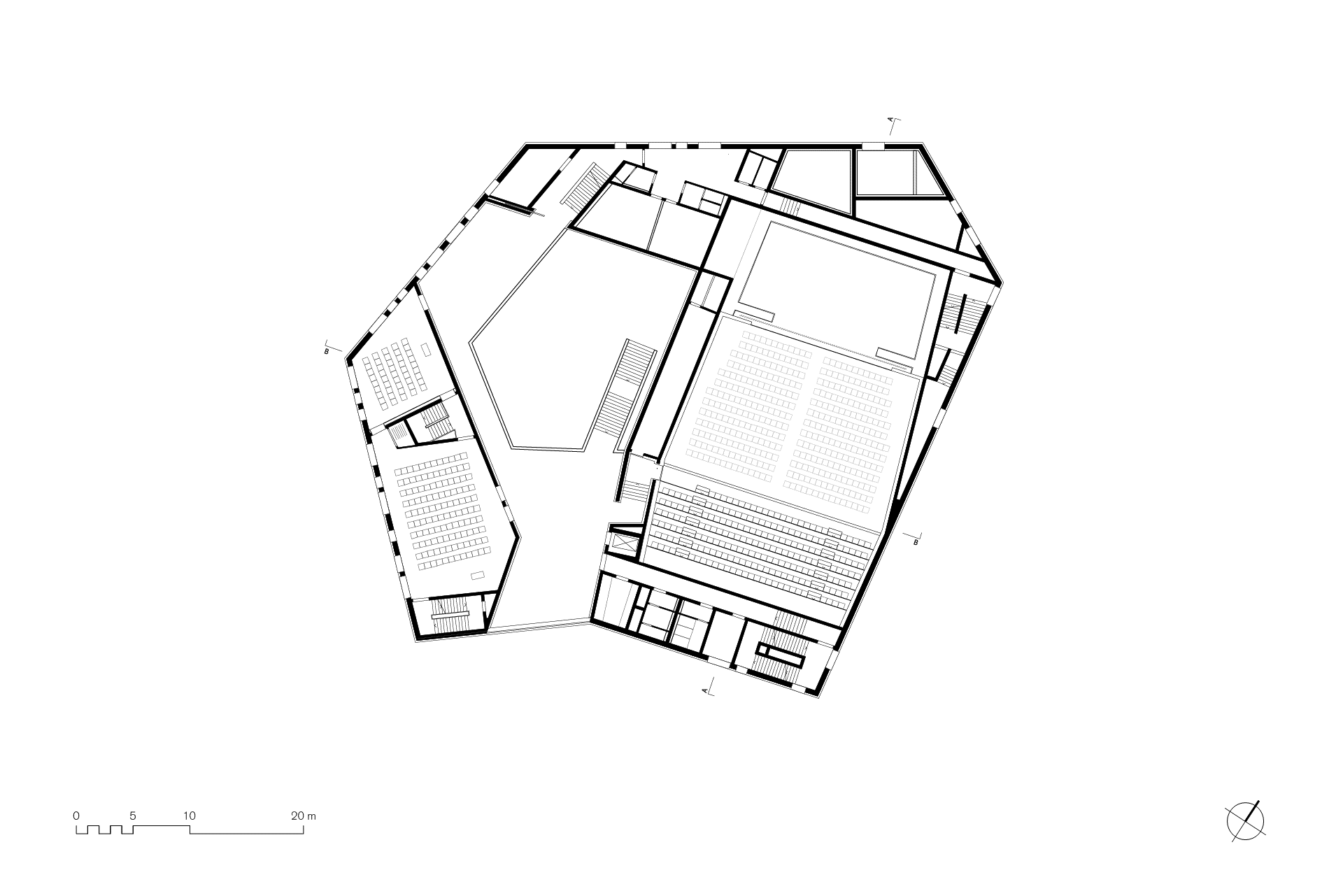
Als unregelmäßiges Siebeneck besetzt die Stadthalle eine Brachfläche unweit der historischen Altstadt Lohrs, nur wenige Schritte vom Mainufer entfernt. Der Neubau verarbeitet in seiner Geometrie die Heterogenität seiner Umgebung aus Stadt, Fluss, Kreisverkehr, Sportplatz, Freibad und Hotel. Durch ihre Allseitigkeit wird die neue Stadthalle zum Kristallisations- und Ausgangspunkt der Aufwertung eines vernachlässigten Teils der Stadt. Der Zugang des Hauses reckt sich der Stadt entgegen, gemeinsam mit dem bestehenden Hotel wird ein repräsentativer Vorplatz formuliert, den die Gastronomie belebt. Der etwa 800 Zuschauer fassende Saal blickt in die angrenzende Landschaft. Der polygonale Baukörper wurde als skulpturaler Klinkerbau mit wenigen, gezielt eingeschnittenen Öffnungen errichtet. Im Bereich des zenital belichteten Foyers setzt sich die Materialität der Fassade in den Innenraum fort.

Daten

VOF-Verfahren 2011 / 1. Rang
Fertigstellung 2016
Bauherr Stadt Lohr am Main
BGF 7.509 m²
BRI 39.048 m³

Jahnstraße 8
97816 Lohr am Main

Auszeichnung
Auswahl zum DAM Preis für Architektur in Deutschland 2019

Ziegel
Gestühl
Eiche
Terrazzo