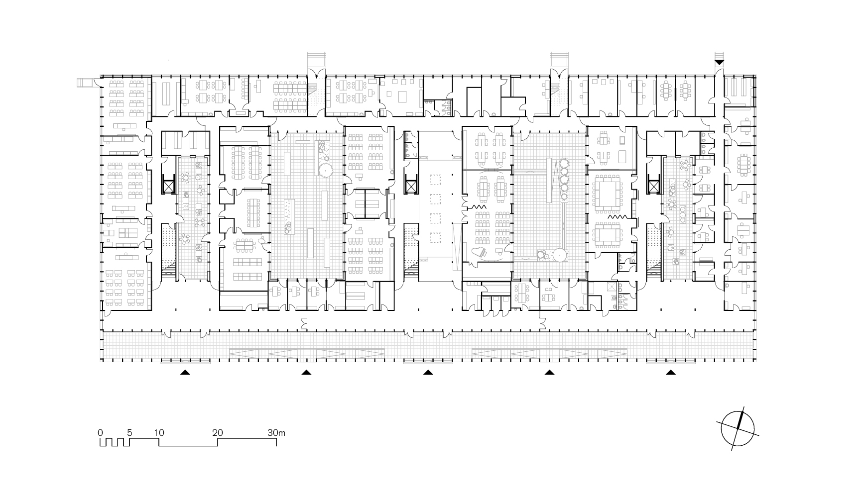
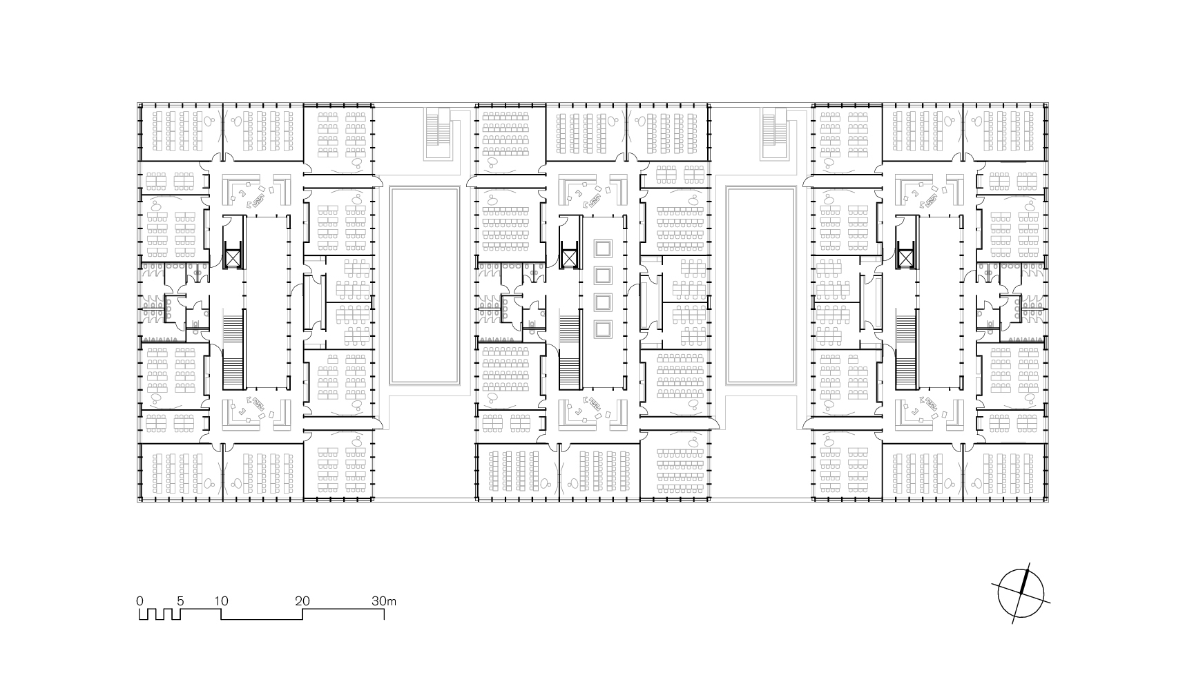
Das Grundstück der Integrierten Gesamtschule befindet sich an der Burgfeldsweide, südlich des Stadtzentrums von Rinteln (Niedersachsen). Ein einfacher und geometrisch klarer Baukörper, der für maximal 900 Schüler konzipiert wurde, ergänzt gegenüber dem bestehenden Gymnasium das Ensemble auf dem Schulareal. Mit seiner ruhigen, rechteckigen Geometrie formuliert der zweigeschossige Neubau einen stadträumlichen Gegenpol zur gewachsenen Struktur des Bestandsbaus. Seine Fassade besteht aus im eigenen Forstbetrieb des Bauherrn geschlagenem Lärchenholz. Zum Schulhof hin besitzt der 112 Meter lange Neubau an seiner gesamten Längsseite eine offene Eingangszone, die als Willkommensgeste, gedeckter Pausenbereich, Kommunikationsfläche und zur Erschließung der einzelnen Lerncluster dient. Durch dieses vermittelnde Entree entsteht ein niederschwelliger Zugang in ein helles und freundliches Schulgebäude. Klar und einfach ist auch die innere Aufteilung des Neubaus: Auf einem mit Fachräumen und Verwaltung belegten Sockel sitzen drei rechteckige Doppelcluster, die über vier Innenhöfe unterteilt und belichtet werden. Die IGS wurde barrierefrei, integrativ und nachhaltig geplant. Sie ist als demontierbarer Massivholzbau mit Holzrahmenfassade ausgeführt, nahezu alle wesentlichen Tragwerks- und Bauteile bleiben im Innenraum sichtbar. Dadurch wird der Holzbau integraler Bestandteil des Gestaltkonzepts. Angenehme Raumatmosphäre und Materialhaptik verbinden sich mit rationeller Fertigung, kurzer Bauzeit und einem zukunftsweisenden Energiekonzept.
Wettbewerb 2017 / 1. Preis
Fertigstellung 2021
Bauherr Landkreis Schaumburg, Stadthagen
BGF 9.315 m²
BRI 35.000 m³
Paul-Erdniß-Straße 1a
31737 Rinteln
Auszeichnungen
1. Preis beim Holzbaupreis Niedersachsen 2022
Engere Wahl beim Staatspreis für Architektur Niedersachsen 2022
Finalist beim Deutschen Nachhaltigkeitspreis Architektur 2023
Anerkennung beim Bundeswettbewerb Holzbauplus 2022/23
Engere Wahl beim Deutschen Holzbaupreis 2023
Anerkennung beim Deutschen Architekturpreis 2023
Auszeichnung beim BDA Preis Niedersachsen 2023
Shortlist beim Heinze Architektur AWARD 2023
Kautschuk-Noppenboden
Schalung aus heimischer Lärche
Betonwerkstein
Textiler Sonnenschutz
























