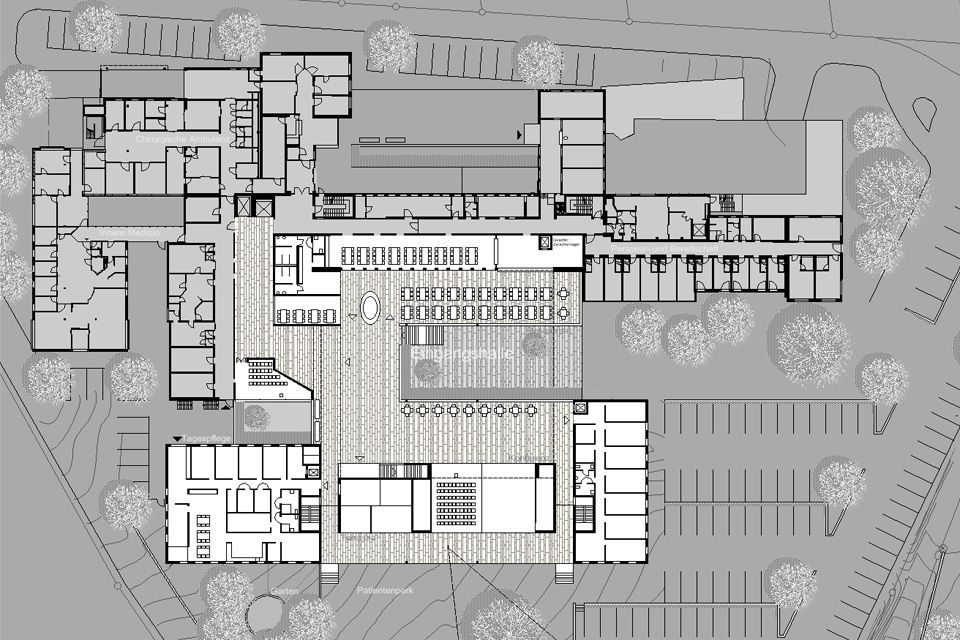
A three-storey wing will be added to the south side of the existing hospital. A spacious lobby will be created, connecting old and new to form the new Langenau health center and defining a common entrance. Stores and physical therapy are located on the entrance floor, while the floor above houses the conference and restaurant area, as well as day care. On the upper floor, private medical practices complement the health center's services. The surgery will be extended on the north side of the hospital, giving the ensemble a clear structural conclusion.
Competition 2006
3rd prize


