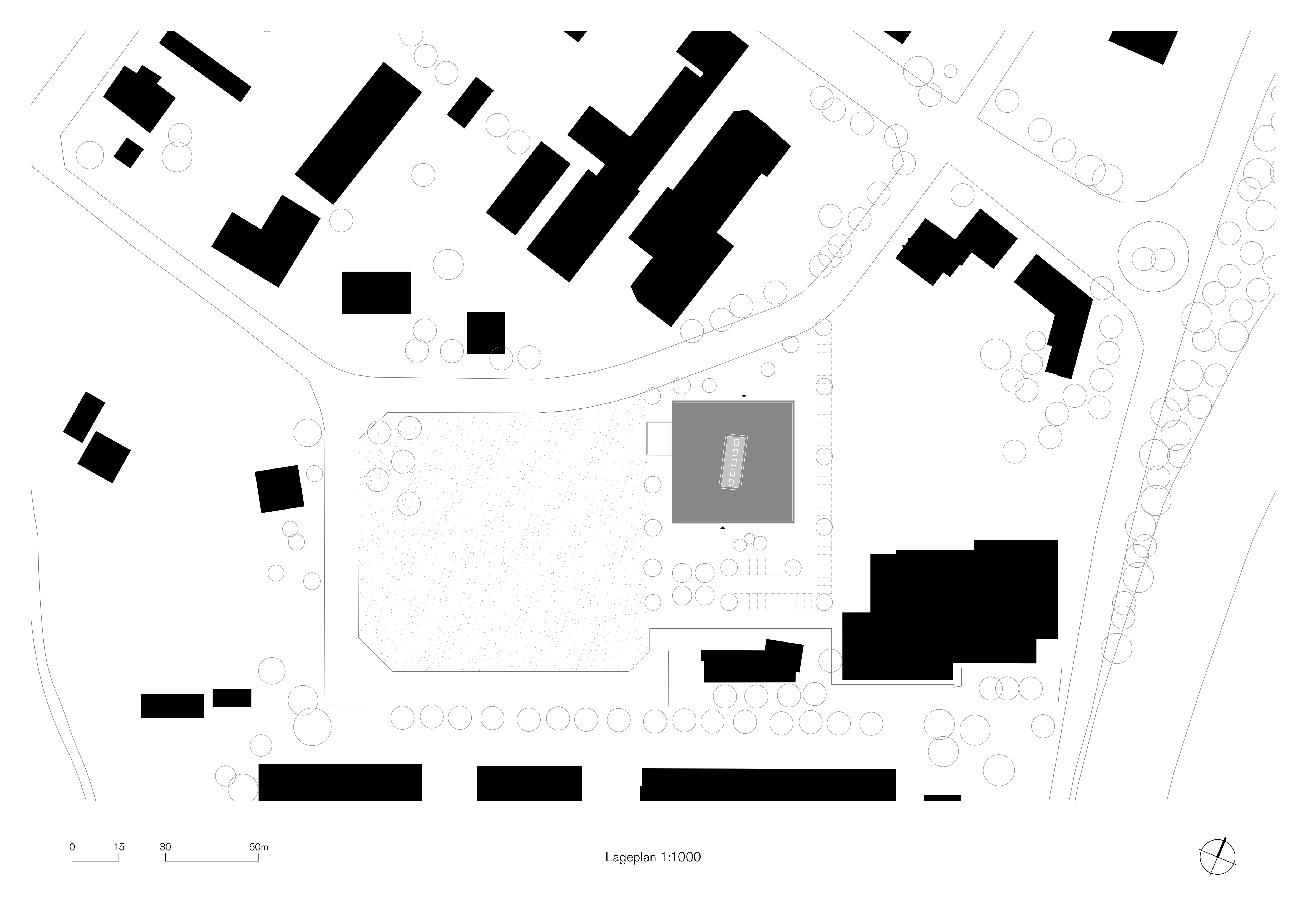
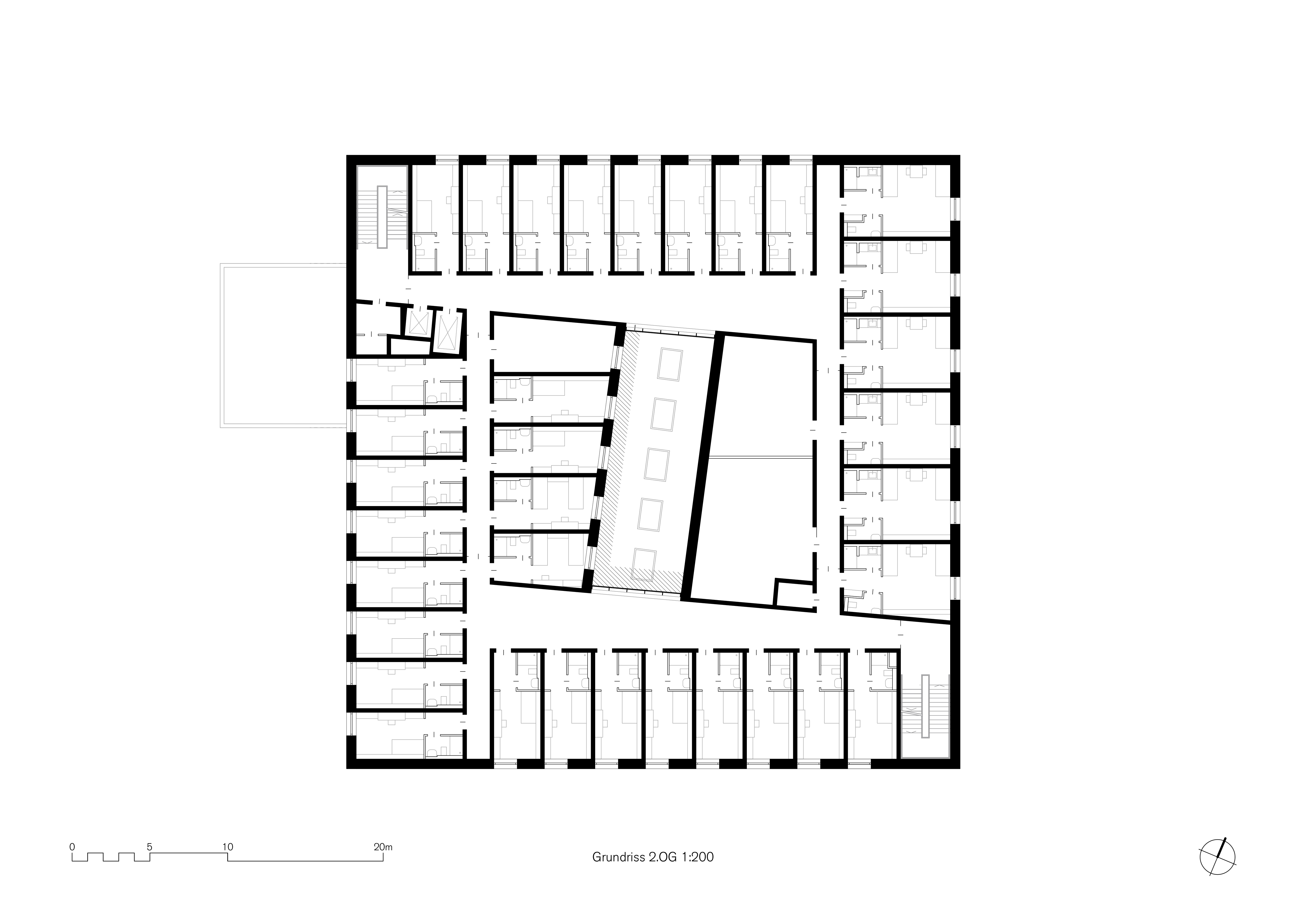
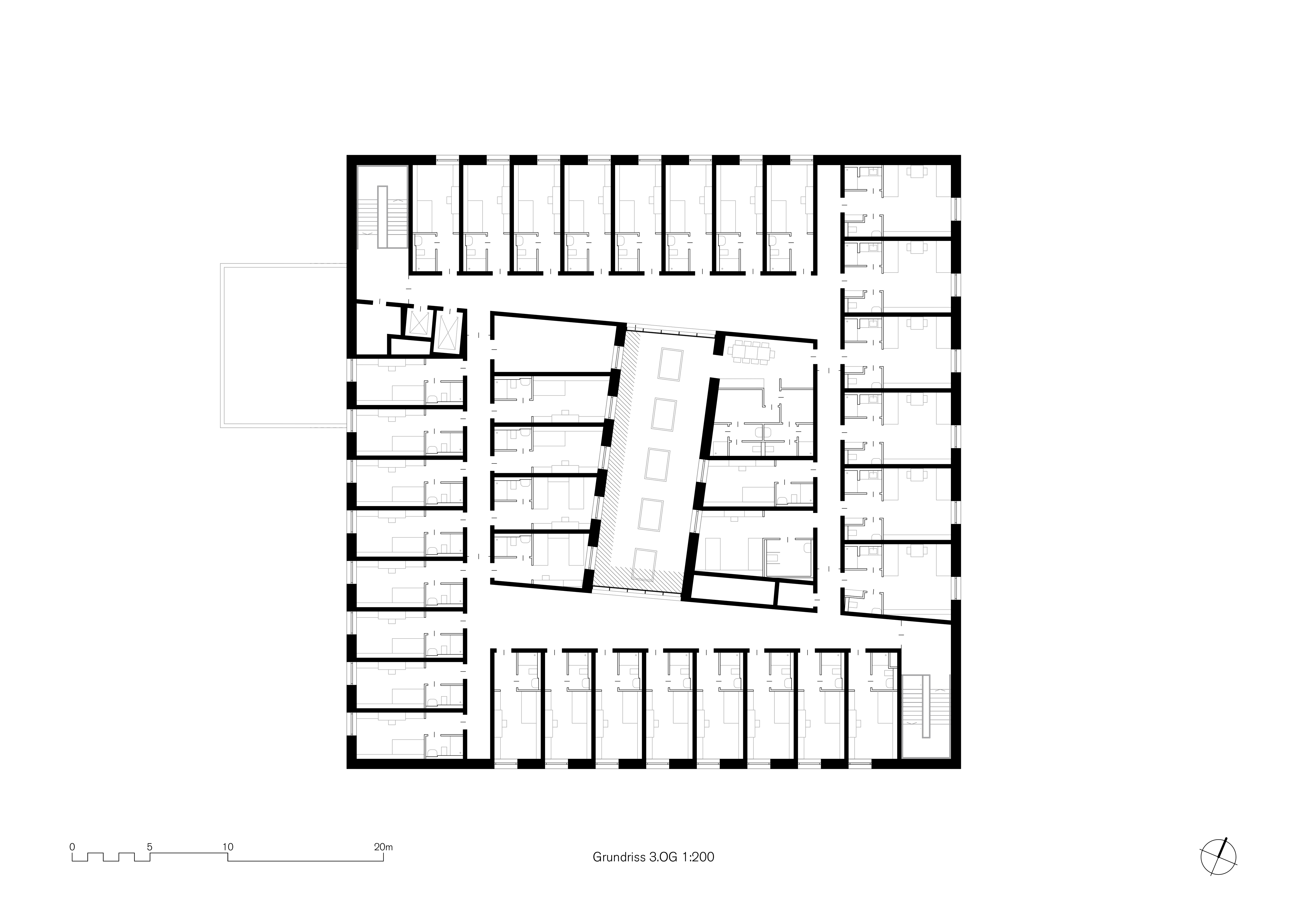
The Federation of German Brass Band Associations has built its music academy in an industrial estate on the outskirts of the town of Staufen im Breisgau. The new building responds to its faceless surroundings with a powerful architectural appearance: the square brick building is accessed via a connecting foyer. The first floor houses the large concert and rehearsal rooms, the dining room and the administration, while the smaller rehearsal rooms are arranged around the two-storey concert hall on the second floor. Two centrally located bar and lounge areas serve as a communicative meeting point for musical guests. The two upper floors accommodate 60 single and double rooms for visitors. The principle of stacking the functional areas is also expressed in the sculpturally designed façade of the building. While the very public first floor with its trapezoidal windows aims to create the impression of an inviting cultural building, the smaller rehearsal rooms on the second floor are concealed behind a surrounding, strictly timed row of windows. The two residential floors have perforated windows assigned to each room, providing guests with the necessary privacy.
Procurement procedure 2017 / 1st Place
Completion 2024
Client Federation of German Brass Music Associations
Gross floor area 5,750 m²
Gross Volume 23.500 m³
Gewerbestraße 5
79219 Staufen im Breisgau
Water-struck clinker brick, wild bond
Textile curtain, light gray
Wood wool acoustic panel
Solid oak strip parquet

















